............. Teléfono: 954 70 00 10 - Whatsapp: 675 981 001
Vivir en Sevilla
Tu hogar con piscina, garaje y metro a dos minutos
Buscar
Inicio
Ubicación
Back
Entorno
Ubicación
JTH Proyecto
Back
Concepto VVCC
Imágenes
Descripción
Calidades
Memoria
Equipo
Universal yts
JTH Planos
Back
Guía de planos
Planta baja
Planta primera
Planta segunda
Sótano
Cubiertas
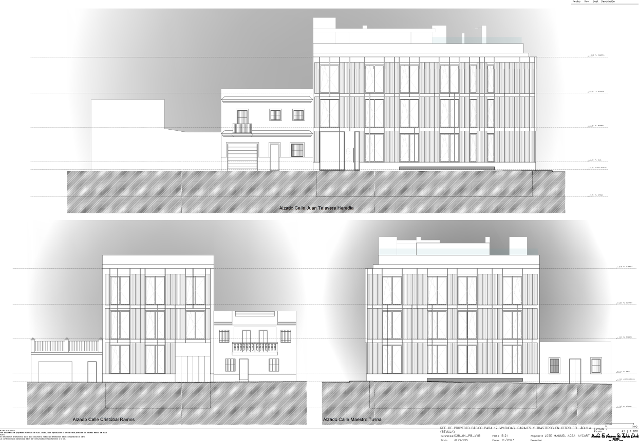
Alzados
En venta
Back
Disponible
Planta baja
Back
Vivienda 0A
Vivienda 0B
Vivienda 0C
Vivienda 0D
Planta primera
Back
Vivienda 1A
Vivienda 1B
Vivienda 1C
Vivienda 1D
Planta segunda
Back
Vivienda 2A
Vivienda 2B
Vivienda 2C
Vivienda 2D
Trasteros
Garajes
Calculadoras
Back
Cálculo de pagos
Cálculo de préstamos
Información
Guía de planos
Planta baja
Planta primera
Planta segunda
Sótano
Cubiertas
Alzados
Artículo siguiente: Planos
Siguiente